安诗曼电器
手机:133-6050-3273
微信:133-6050-3273
地址:广东深圳坪山区青松西路8号鸿合科技园

转轮转速的影响转轮转速也是影响其性能的重要因素,全热交换器与除湿机对转速的要求是不同的。提高转速可以使换热效果增强,但是这样由于吸湿剂在再生区停留的时间变短,得不到充分的再生,会使除湿效果降低;转速太低则使吸湿剂在除湿区停留的时间过
了解详情
紫菜、海苔烘干用除湿机,不易碎味更鲜新闻资讯:一提到紫菜,相信大家都不会陌生,也都喝过各种各样的紫菜汤吧!到目前为止,全世界发现的紫菜就有300多种,但是大家在日常生活中最为常见并且有经济价值的就属坛紫菜和海苔,市面上出售的坛紫菜和海苔大多是干制之后的;坛紫菜和海苔同属于海洋藻类,透明而薄表面具有一...
了解详情
安诗曼除湿机有家用和工业用之分,在前文中,我们已经全面介绍了安诗曼除湿机,今天为大家带来一篇有关家用除湿机该如何选择的文章。此文是专门写给家庭用户选购除湿机时做参考之用,会讲到家庭用户在选购除湿机时,
了解详情
顾客在购买除湿机产品时咬住哟看使用面积大小,一般按房面积每平方米20W计算除湿能力的选择。一般情况下,一间房约10平方米,可采用250W全塑钢除湿器制冷量,每天可抽湿量约16升。在选择和购买时,顾客应考虑
了解详情
现在人们对自身的生活环境要求越来越高,除湿机也逐渐走进了千家万户。但是除湿机厂家以及品牌多的有点让人应接不暇。安诗曼除湿机在工业除湿机领域和家用除湿机领域可以说是除湿机行业的佼佼者了。安诗曼除湿机的工厂为于长三角南翼经济中心——宁波。公司拥有m2标准厂房、㎡办公研发大楼、㎡员工生活区,同时引进
了解详情
干面条是人们喜欢的主要面条之一。面条的生产过程中有一个主要的烘干过程:面条的烘干从传统自然烘干到现代设备烘干,方法有很多种且各有其优点。尽管自然风干具有良好的效果和低成本,但是它必须依靠天空来获取食物。
了解详情
安诗曼安诗曼高配置系列家用全自动除湿机&工业用智能除湿机技术参数与选型参考:A型号:ASM-228LB除湿量:28(L/D)适用面积:30-50(㎡)功率:420(W)B型号:ASM-558LB除湿量:58(L/D)适用面积:50-80(㎡)功率:670(W)C型号:ASM-890C除湿量:90(L...
了解详情
调温型除湿机适合高温环境中使用,在一些温度变化比较大,温度比较高的场合下,使用调温型除湿机的话,对于降低环境内温度和湿度会有比较显著和良好的效果,给我们的生产和工作带来的极大的方便。调温型除湿机的湿装置由除湿蛋和承座组成。所谓除湿蛋,就是一种多孔的,透气
了解详情
鸡蛋纸托烘干除湿机纸制品烘干房除湿机:纸的用处很多,而且纸制品用完之后还可以回收,是一种非常环保的材料,特别是在包装行业用处很大,不管是普通的纸箱,还是复杂的纸盒,由于纸的折叠性能强,都可以设计出来。而且纸制品还可以用来保护易碎易烂的物质,从单一的水果纸袋,到装鸡蛋鸭蛋的纸托,很好的解决了这些易碎物...
了解详情
通过上面的解释,已经找印刷厂频繁出现静电的根源----空气湿度过低。解决静电带来的一系列问题,增加印刷厂的空气湿度即可。那么增加空气湿度,就需要在印刷厂里使用工业加湿器了。安诗曼超声波加湿器系列采用的是高频防水纳米级雾化器,10头雾化器,不仅仅能快速制雾,而且是纳米级水雾颗粒(产雾颗粒≤5μm),完...
了解详情
除湿烘干一体机干燥枸杞更方便:“人到中年不得已,保温杯里泡枸杞”,这话的意思是枸杞可以养生,那么为什么大家喜欢用枸杞来养生呢?因为枸杞的营养价值很高,含有含甜菜碱,阿托品,天仙子胺等营养成分,可以提高人体免疫力,中医认为它有养肝,滋肾,润
了解详情
安诗曼ASM-8480D吊顶式除湿机及安诗曼高配置系列中央吊顶除湿机技术参数:◆产品规格--基本规格:除湿量1kg/h-20kg/h的常规机型,按照使用现场要求提供不同安装方式或特殊要求机型,可选择压缩机的品牌、除湿量的大小,外形尺寸)。以上产品外观、技术参数与产品型号、规格尺寸仅供参考,均以实际出...
了解详情
1.湿度和舒适性根据皮肤感觉、生理反应和热效应获得“标准有效温度指数”,它表明相对湿度在20%~50%范围内、干球温度在23~25℃范围内,是人体感觉舒适的最佳温湿度环境。2.湿度与健康不合适的湿度容易使人生病,影响人体健康。许多致病菌
了解详情
1、干衣除湿:快速除湿,干燥衣物;2、强力除湿:快速除湿,迅速降低室内湿度;3、静音除湿:低噪声运行,适合于夜晚睡眠时使用;4、智能除湿:室内湿度比较高时会自动开启除湿功能;湿度比较低时会自动关闭除湿功能。智能除湿方式可将室内湿度维持在人体最适宜的55%RH~60%RH范围内;5、实时湿度显示功能;...
了解详情
根据不完全统计显示,多家除湿机上游核心配件公司2017年业绩有望保持较好增长态势。业内人士认为,北美压缩机供应已开始启动,压缩机企业开始库存储备。另外,下游家用除湿机内销出货触底反弹,渠道补仓积极,且2017年春节较早,部分除湿机企业
了解详情
雨天除湿有点难,除湿机可速解决不管你接不接受雨肯定会下的但总会有雨过天晴的时候所以,一定要淡定、再淡定!不过,今年的梅雨季有点长可能大家都经历着这样的循环:衣服湿,衣服湿,衣服湿完裤子湿裤子湿,裤子湿,裤子湿完鞋子湿鞋子湿,鞋子湿,鞋子湿完袜子湿袜子湿,袜子湿,袜子湿完衣服湿1、床品潮湿,衣物难干…...
了解详情
想必大家都对海参不陌生,在日常生活中或多或少都能听到或者见到过,海参一般生活在海边和水深8000米区间的海里,并且和燕窝鱼翅还有人参并称世界八大珍品。而且海参的作用不仅仅是珍贵的食品,同时也是一种比较珍贵的药材,明见对其的记载也是蛮多的比如本草纲目、临海水土异物志、五杂俎等,满汉全席里也出
了解详情
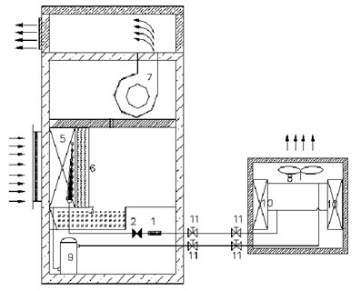
关于除湿机构造已有过讲解,主要是压缩机、冷凝器、蒸发器、节流阀等组建而成。现在我们围绕两器原理来给大家讲解一下。冷凝器和蒸发器都属于热交换器。所谓热交换器,就是有两种或两种以上温度不同的流体介质相互传热的设备。因此冷凝器与蒸发器工作原理是相同的,都是通过制冷剂与流经其容器表面的外界介质换热的设备,即...
了解详情
盐,是一日三餐都要使用到的食盐;不知道大家有没有发现,在潮湿多雨的天气里,湿度相对较大,盐一遇到潮湿的空气就很容易受潮而结块或潮解!因此,食用盐加工厂或企业应从原材料的选择、生产、包装和仓储等几方面下功夫,避免食用盐受潮;那么,使用工业除湿机来做好防潮除湿工作显然是一个非常不
了解详情
四月已至,爱车经过春运返程以及小长假的“任劳任怨”,基本已显“风尘仆仆”。最近,随着春季潮湿天气来袭,车内甚至异味四起,让人苦不堪言。不仅如此,紧接着还有五一、端午等小长假需要爱车高强度“奔波劳累”,显然春季保养爱车
了解详情